Rumah Segitiga yang Kesannya Sempit, Saat Dilongok Ternyata Bikin Takjub
Pool - wolipop
Kamis, 20 Agu 2020 09:00 WIB
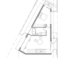
Jakarta - Membangun rumah di lahan tak biasa memang jadi sebuah tantangan. Tapi arsitek satu ini berhasil membuat rumah bentuk segitiga yang unik dan nyaman.
(Pool)
Health & Beauty
Mykonos Hawaiian Crush Extrait de Parfum, Parfum Wangi Tropis yang Bikin Mood Naik!
Elektronik & Gadget
Airbot X40 Master, Robot Vacuum Super Pintar untuk Rumah Bersih Tanpa Ribet!
Health & Beauty
Secret Garden Extrait de Parfum, Wangi Mewah yang Tahan Lama dan Bikin Kesan Lebih Berkelas!
Health & Beauty
Rambut Lebih Halus & Anti Ngembang, Ini 3 Hair Care Andalan untuk Rambut yang Susah Diatur!
Artikel Terkait
Most Popular
1
Gaya Berani Sydney Sweeney di Pemotretan Terbaru, Tubuh Emas Tanpa Busana
2
Potret Piper Rockelle, Mantan Influencer Cilik Gabung OnlyFans Jadi Kontroversi
3
Demi Totalitas Akting, Kate Hudson Rela Nggak Skincare-an dan Naik BB 7 Kg
4
50 Ucapan Selamat Tidur Bahasa Inggris Romantis, Bikin Pacar Senyum Meleleh
5
Cara Tak Terduga Klamby Rilis Koleksi Lebaran 2026, Dibungkus Film Musikal
MOST COMMENTED











































